
Vindflöjeln på taket "1891" vittnar om byggnadens 100-åriga historia innan Frejs Magasin föddes. Under många år hade handelsmannen Claudelin och senare bröderna Olin spannmålsförvaring i magasinet. Ungefär 1000 ton spannmål köptes årligen upp från traktens bönder och precis som i magasinet vid hamnen stod starka karlar här i boss och damm med träskovlar och kastade runt säden så att den skulle torka ordentligt. På gården bakom magasinet staplades slipers och senare var där uppställningsplats och garage för de SJ-bussar som trafikerade Ljugarn (https://www.ljugarn.net/historia/Bebygg/Sto53.htm).
I början av 1980-talet köptes magasinet av Frej Hägglund och Barbro Bergner av Lantmännen. Frej och Barbro hade startat verksamhet på Bruna Dörren i början av 1970-talet och personalboende började nu bli en het fråga. Verksamheten på Bruna Dörren hade startat som enkelt diskotek men växte med åren från disco till kaffeservering och senare även restaurang och pizzeria. Fler och fler anställda behövde någonstans att bo och lösningen fanns i magasinet. Med hjälp av arkitekten Jonas Pajaujis inleddes omvandlingen från spannmålsmagasin till bostadsfastighet. Jonas Pajaujis var en litauisk motståndskämpe som arresterades 1944 av Gestapo och internerades i Stutthof - ett av Tysklands värsta utrotningsläger. Pajaujis kom undan med nöd och näppe när tyskarna sprängde evakueringsfartyget Altona och med hjälp av svenska Röda Korset kom han till Sverige och han bosatte sig i Rudvier i Alskog. Vilken tur för magasinet!
Pajaujis upprättade uppmätningsritningar på hela fastigheten och hjälpte till att utforma ett förslag hur fastigheten skulle kunna disponeras om. Ombyggnationer påbörjades av bottenvåningen och fönster beställdes från Ljugarns Snickerifabrik. Snickerifabriken fick minst sagt fullt upp när beställningen på ett 50-tal fönster till magasinet ramlade in. Efter byggnationerna tjänade fastigheten som personalboende men även som sommarbutik under ett antal somrar.
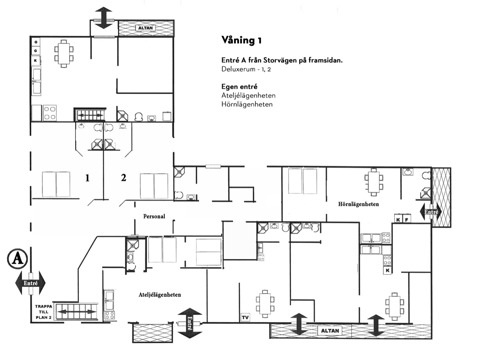
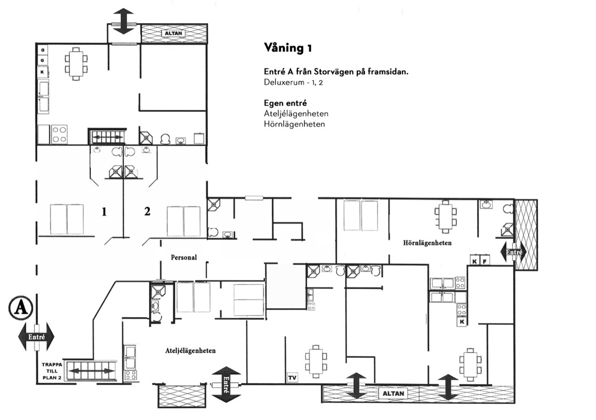
I början av 1990-talet är det dags för ytterligare utveckling. Arkitekt Holger Swahn gör nya ritningar för första och andra våningen. Nu är siktet inställt på att omvandla magasinet till vandrarhem/enklare hotell. Nya bygglov söks, byggnaden brand- och ljudklassas, hotellrum utformas och eran med Frejs Magasin inleds.
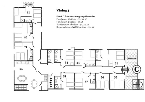
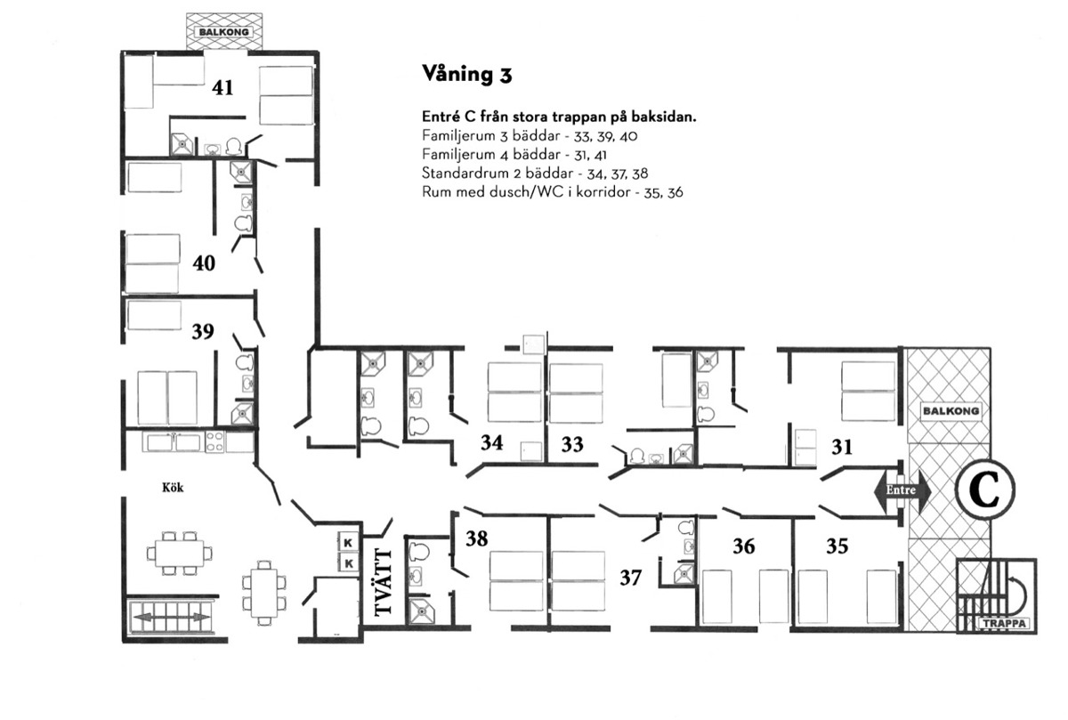
Ljugarn växer och så även Frejs Magasin. Holger Swahn upprättar 1995 nya ritningar för tredje och sista våningen.
Magasinet har idag 7 st mindre lägenheter, 17 st hotellrum och 3 st enklare rum med dusch och toalett i korridoren.
År 2026, alltså ca 35 år senare, tar Frej och Barbros dotter Elin över stafettpinnen. Elin ska nu tillsammmans med sin man Jakob Tholsby blåsa nytt liv i detta mysiga krypin. Elin och Jakob driver sedan tidigare Strandvillan och Strandcafét. Frejs Magasin tar nu plats i "Strand-familjen" och verksamheten byter namn till Strandlogiet. Under vintern kommer en del av byggnaden att renoveras. Strandlogiet är bokningsbart redan nu men vi öppnar portarna först i maj 2026.
I Strandlogiet möter historien nutiden. Med närhet till havet, de långgrunda sandstränderna och den gotländska naturen erbjuder Strandlogiet en rofylld vistelse med både avkoppling och upplevelser runt hörnet.


Hitta hit:
Strandlogiet Ljugarn
Storvägen 53
623 65 Ljugarn
Telefon:
0705-493349
- Ljugarns strandcafé & restaurang